111.361.00.5
Инсталляция Geberit Duofix 111.361.00.5
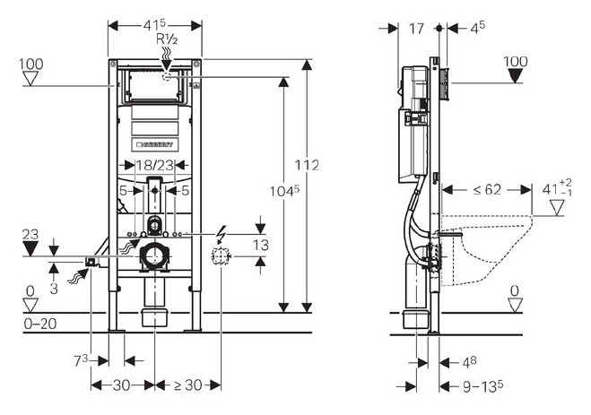
Узкая инсталляция Geberit Duofix Sigma UP320 111.361.00.5 с бачком скрытого монтажа для подвесного унитаза.
Монтаж:
Встраиваемая перед стеной.
Ширина: 41,5 см.
Высота: 112 см.
Бесступенчатая регулировка высоты ножек: 0-20 см.
Расстояние между болтами для монтажа унитаза: 18 или 23 см.
Функциональность:
Бачокскрытогомонтажа сфронтальныммеханическим управлением.
Режим смыва: двойной или одинарный.
Режим старт/стоп: возможность прерывания смыва в любой момент.
Заводская установка объема смыва: 6 и 3 л.
Диапазон настройки большого объема: 4,5/6/7,5 л.
Диапазон настройки малого объема: 3-4 л.
Объем в режиме старт/стоп: 4,5/6/7,5 л.
Подключение воды: 1/2 дюйма по центру сзади/сверху.
В комплекте поставки:
Монтажная рама.
Смывной бачок.
Две резьбовыешпилькиМ12длякрепленияунитаза.
УгловойзапорныйвентильR1/2 дляподводаводы.
Защитнаязаглушка.
Коробкамонтажнаядляокнаобслуживания.
Комплектсоединительныхпатрубковдляунитаза,D9 см.
ФановыйотводизПНД,D9 см.
Переходныйпатрубок,D 9/11см.
Компл







